• proiecte
  • CONTACT
invelitoare
terasa
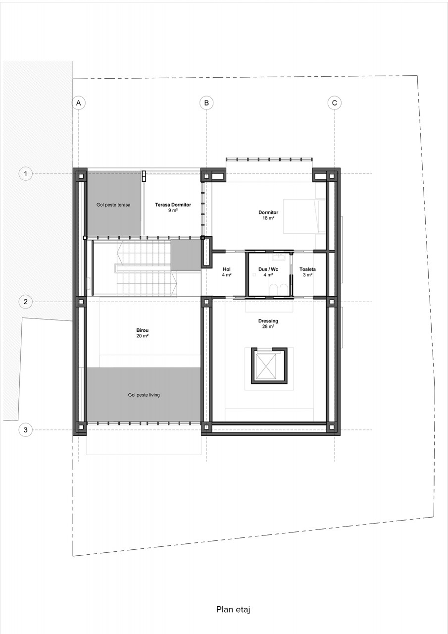
etaj_axo
demisol_axo
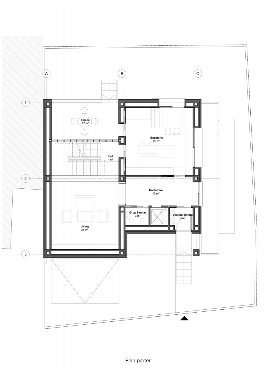
parter_axo
macheta_3_w
curte_spate3
interior_living3
exterior_1
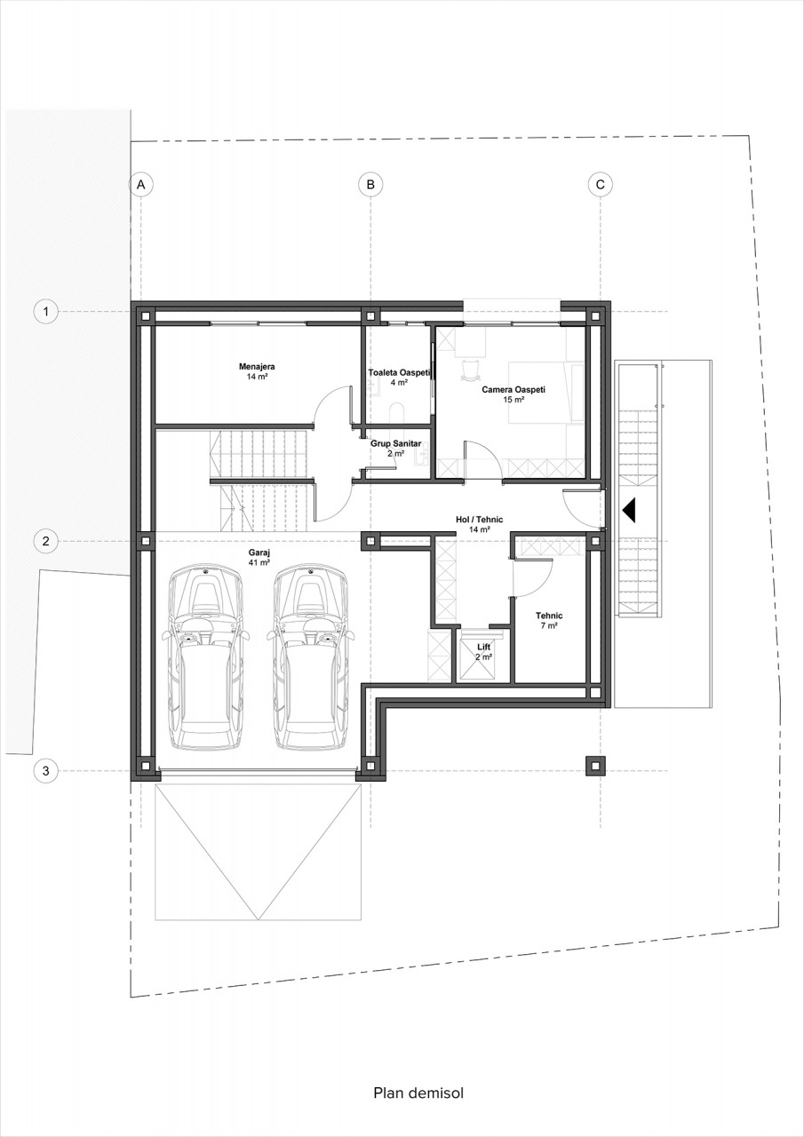
C:UsersLiviuDocuments151018_CASA IM - Sheet - A2 - Plan demi
C:UsersLiviuDocuments151018_CASA IM - Sheet - A2 - Plan demi
C:UsersLiviuDocuments151018_CASA IM - Sheet - A2 - Plan demi

locuință individuală - concept

URSU

program

locuinţă individuală

client

privat

indicatori urbanistici

55% - POT
1 - CUT
D+P+E - regim de intaltime

suprafata utila

314 mp

buget

€ 300 000
Use arrows for navigation