• proiecte
  • CONTACT
3_Zona Lectura Libera_v2 copy
C:UsersLIVIUDesktop150612_UAR - Sheet - A01 - PLAN DE SITUAT
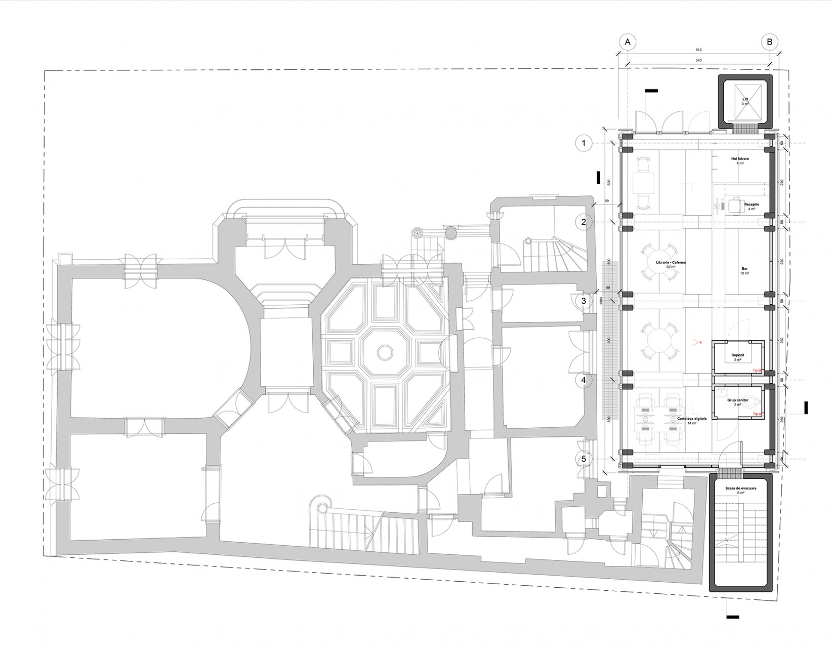
C:UsersLIVIUDesktop150612_UAR - Sheet - A02 - PLAN PARTER.pd
C:UsersLIVIUDesktop150612_UAR - Sheet - A11 - AXONOMETRIE ST
1_PRINCIPALA_v2
4_INTERIOR NORD
2_INTERIOR LUMINATOR
3_INTERIOR INTRARE
C:UsersLIVIUDesktop150612_UAR - Sheet - A09 - ELEVATIE NORD.
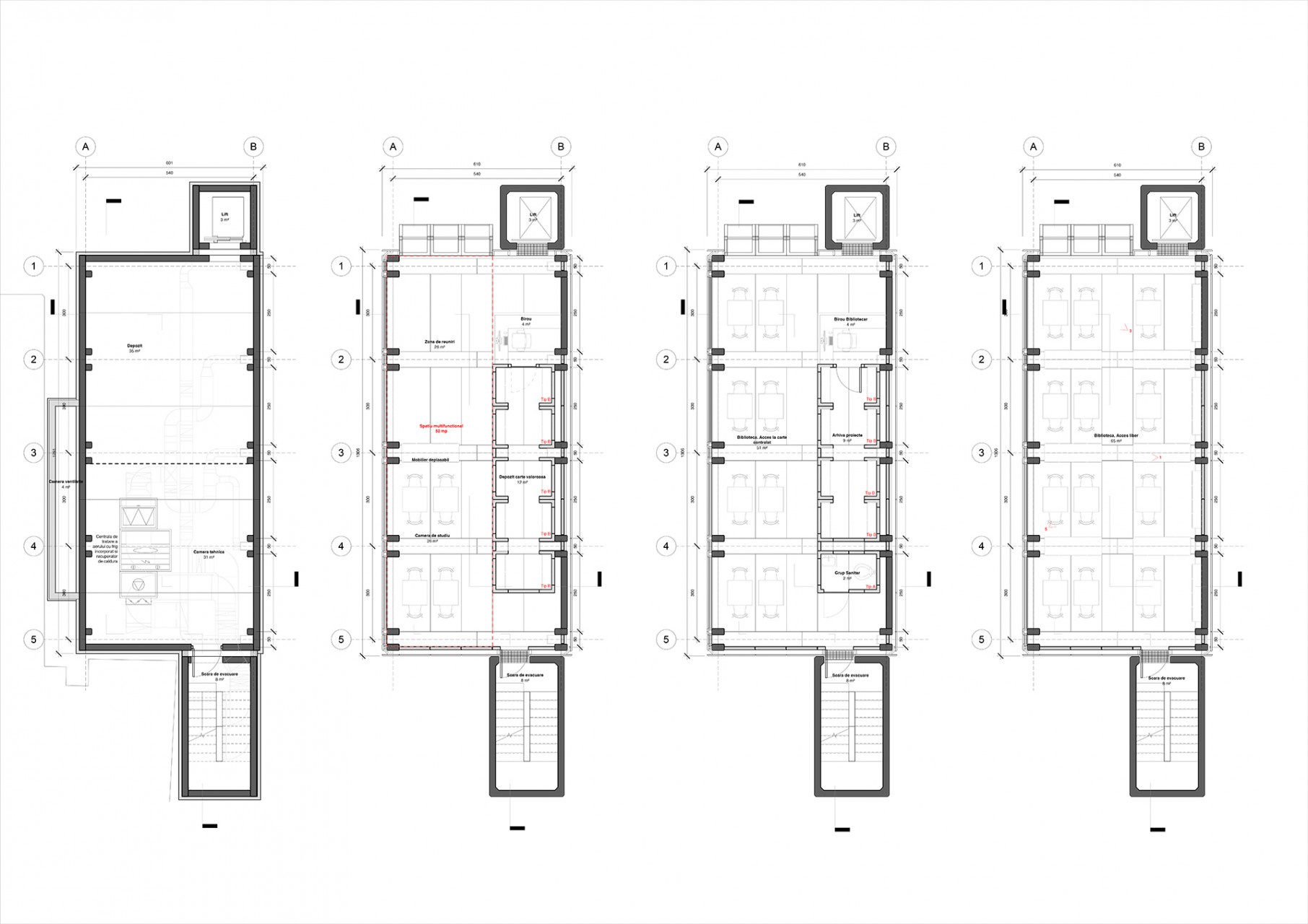
C:UsersLIVIUDesktop150612_UAR - Sheet - A03 - PLANURI.pdf

bibliotecă - concurs

UAR

program

Bibliotecă, arhivă

client

Uniunea Arhitecților din România

indicatori urbanistici

460 mp - bibliotecă, arhivă
65% - procent ocupare teren
2.6 - coeficient utilizare teren
D+P+3E - regim de înălțime
Use arrows for navigation